Login Form
Registration
Profile Informations
Login Datas
or login
Detalles
Extractor Centrífugo Industrial Tipo UF – Alta Presión y Trabajo Pesado en México
Ventilador centrífugo industrial con transmisión por poleas y bandas, diseñado para extracción e inyección de aire en entornos exigentes: bodegas, fábricas, campanas industriales, talleres y procesos continuos (24/7).
- ✅ Presión estática media / alta
- ✅ Operación continua (uso industrial)
- ✅ Ajuste de RPM por transmisión
- ✅ AMCA anti-chispa (según clase)
No todos los extractores sirven para trabajo pesado. Si tu sistema tiene ductería larga, filtros, codos múltiples o manejo de partículas/humo, un centrífugo UF mantiene desempeño estable donde un axial suele colapsar.
Diseñado para trabajo industrial real
- - Carcaza y estructura fabricadas en acero al carbón.
- - Turbina centrífuga con álabes curvos atrasados para alta eficiencia.
- - Balanceo estático y dinámico para operación más estable.
- - Transmisión por poleas y bandas para ajuste preciso de RPM.
- - Recubrimiento electrostático poliéster horneado (resistente a corrosión).
- - Rodamientos de servicio pesado.
- - Rotación CW / CCW.
- - Disponible en 8 posiciones de descarga (TH, TAD, DB, BAD, BH, BAU, UB, TAU).
- - Construcción anti-chispa según clasificación AMCA (según configuración).
Aplicaciones industriales críticas
- - Ventilación en bodegas y almacenes (gran volumen).
- - Plantas de manufactura y procesos térmicos.
- - Campanas de extracción: humo, grasa y vapores.
- - Sistemas HVAC industriales con ductería.
- - Inyección de aire fresco en áreas cerradas.
- - Procesos industriales con presencia de gases o partículas (con filtración adecuada).
CLAVE: el centrífugo UF ofrece mayor capacidad de presión y mejor estabilidad de flujo en ductos largos, filtros y codos.
Datos de desempeño y condiciones estándar
Los datos de desempeño están basados en densidad estándar del aire:
- 0.075 lb/ft³
- 70°F
- 0 pies sobre el nivel del mar
Para condiciones diferentes de altitud y temperatura, se deben aplicar factores de corrección.
Fórmula de Potencia Máxima (BHP)
Max BHP = K (RPM / 1000)³
Donde K depende del modelo (ejemplo: UF-10 = 0.035). Esta verificación ayuda a seleccionar motor y evitar sobrecargas.
Cómo calcular y seleccionar un extractor centrífugo UF
Seleccionar correctamente el extractor implica evaluar CFM, presión estática total, altitud y temperatura.
| Paso | Qué hacer | Fórmula / referencia |
|---|---|---|
| 1 | Calcular el volumen del área (Largo × Ancho × Altura). | Volumen = L × A × H |
| 2 | Definir renovaciones por hora según uso (ejemplos). |
|
| 3 | Calcular CFM requeridos. | CFM = (Volumen × Renovaciones) / 60 |
| 4 | Estimar presión estática total (pérdidas del sistema). |
Se expresa en in. W.G. (pulgadas de columna de agua).
|
| 5 | Verificar potencia (BHP) para selección de motor. | Max BHP = K (RPM / 1000)³ |
Importante: El error más costoso es subdimensionar. Un extractor insuficiente puede causar sobrecarga de motor, fallas prematuras, bajo rendimiento real y consumo eléctrico excesivo.
Nomenclatura:
1. Modelo del Ventilador.
2. Tamaño del Ventilador.
3. Rotación de la turbina:
CW - Sentido Reloj
CCW - Sentido contra Reloj
4. Clase Constructiva del Ventilador
I - Clase I
II - Clase II
Modelos disponibles
Desde diámetros compactos hasta configuraciones industriales de gran capacidad.
| MODELO | P. PÚBLICO VENTILADORES CLASE I |
P. PÚBLICO MXN |
|---|---|---|
| UF-10 | $ 24,329 | $ 30,763 |
| UF-12 | $ 25,678 | $ 32,234 |
| UF-13 | $ 27,588 | $ 36,528 |
| UF-15 | $ 30,367 | $ 38,038 |
| UF-16 | $ 35,742 | $ 44,910 |
| UF-18 | $ 41,469 | $ 52,107 |
| UF-20 | $ 51,011 | $ 64,505 |
| UF-22 | $ 59,032 | $ 74,106 |
| UF-24 | $ 70,790 | $ 88,863 |
NOTA:*No Incluye Motor y Transmisión.
*No Incluye Accesorios.
Disponibles con 8 posiciones de descarga y rotaciones CW / CCW
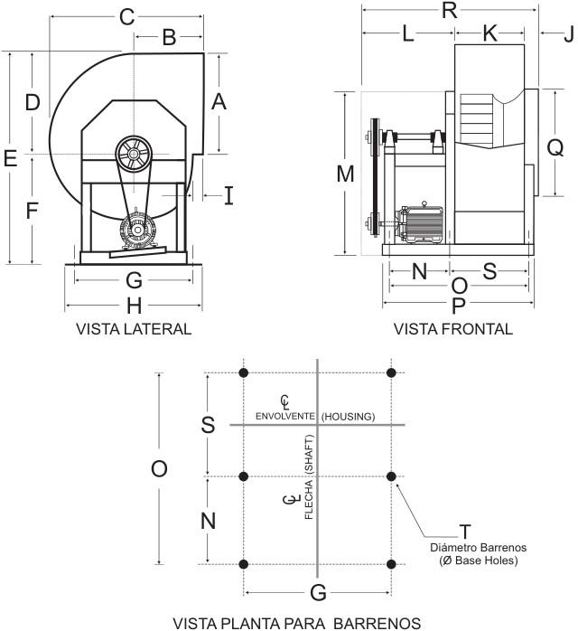
Especificaciones Técnicas:
Solicita ingeniería de selección (México)
Para proponerte el equipo correcto, envíanos esta información:
- Dimensiones del área (L × A × H)
- Tipo de proceso (humo, grasa, partículas, calor, etc.)
- Longitud y tipo de ductos + número de codos/transiciones
- Altitud del proyecto
- Temperatura aproximada del aire
Seleccionamos con base técnica, no por intuición.

